Skip to main content
Architektenheld

Leistungsphase 4

Entwurfsplanung

Nachdem wir Ihren Bedarf geklärt haben und die Rahmenbedingungen abgesteckt sind, erstellen den ersten Entwurf für Ihr Wunschhaus als weitere Gesprächsgrundlage. Im ersten Schritt stehen Themen wie Außenmaße, Platzierung des Baukörpers auf dem Grundstück, Ansichten und Anordnung der Räume an. Sobald diese Punkte Ihren Vorstellungen entsprechen, beginnt die Detailarbeit am Grundriss. Wir planen so lange, bis alles passt!

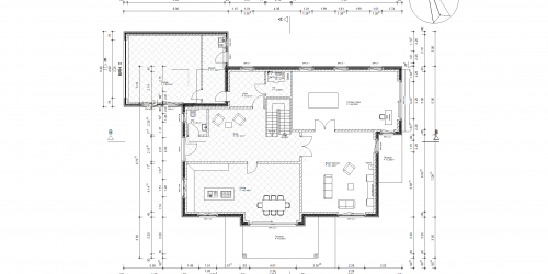
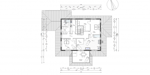
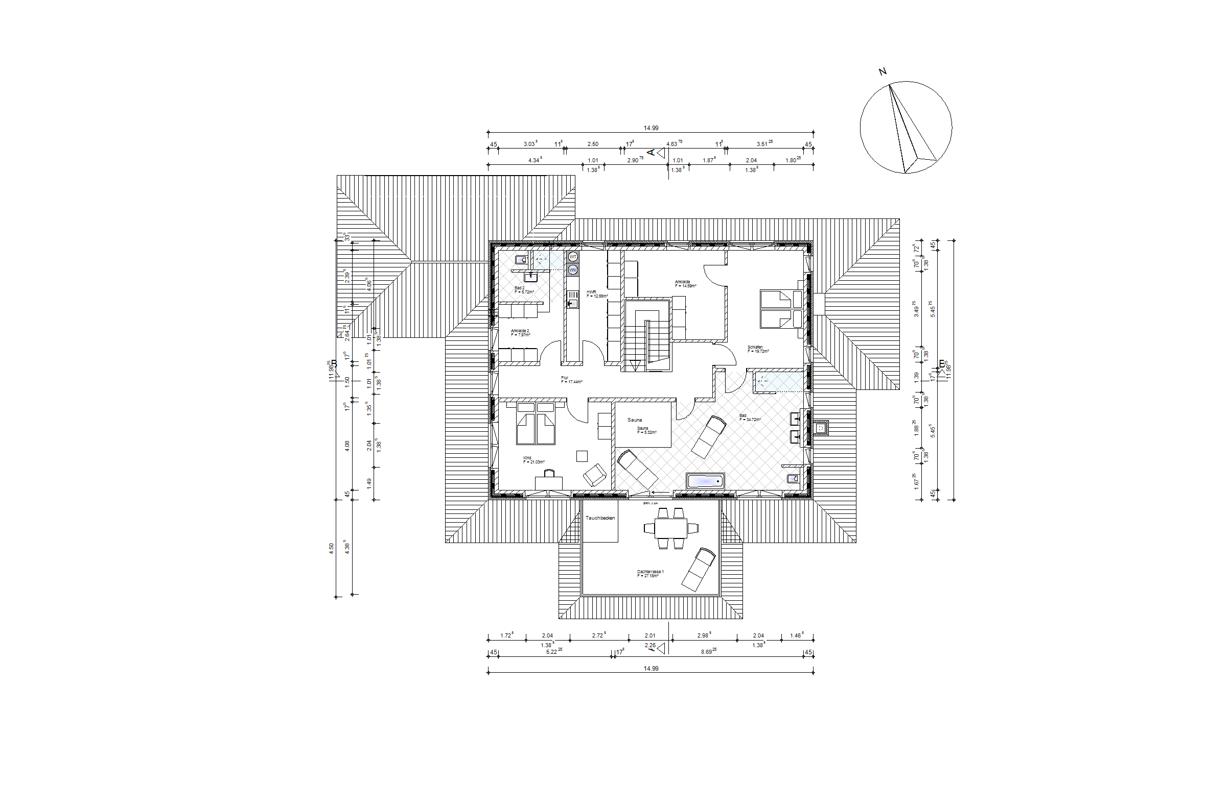
Beispiel gefällig?

Musterplanung Toskanavilla


Musterplanung Mansarddachhaus